210 JORALEMON| BROOKLYN, NY 11201

 

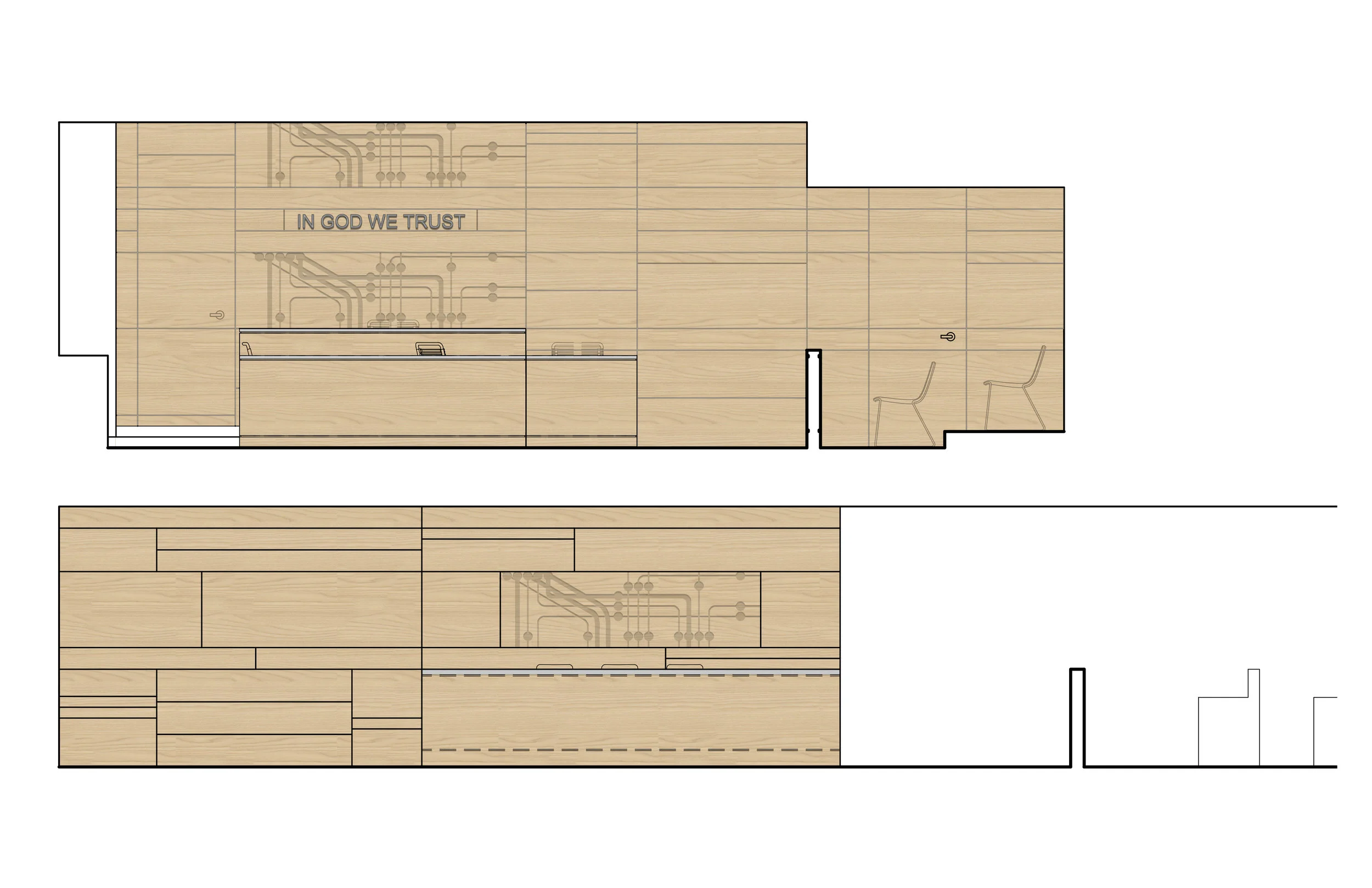
Working with Stantec, RRA has been picked up as courthouse architecture specialists primarily involved in the interior redesign of the courtrooms. My role in particular was acting as BIM manager and designer assisting with the new aesthetic and layout of the courtrooms. The project involves over 30 courtrooms, including back of house suites for judge's chambers, jury rooms, and conference spaces all which are under the scope for RRA. Given the low ceilings, large columns, and tight conditions, courtrooms were inspected incessantly for accessibility and visibility. Sight lines, safety, code, as well as programmatic elements made arranging the courtrooms often difficult which led to the creation of a custom Judge’s bench and custom spectator benches including hidden ramp routes and closed off door entrances. There have so far been 8 variations on the courtroom styles.

 

 
1616.6F-SWCR_Progress.jpg
1616- 6F-NWCR-BofCR.jpg
2017-0629_Pattern-08.jpg
Judges-Bench.jpg