221 N RAMPART BLVD | LAS VEGAS, NV 89144

 

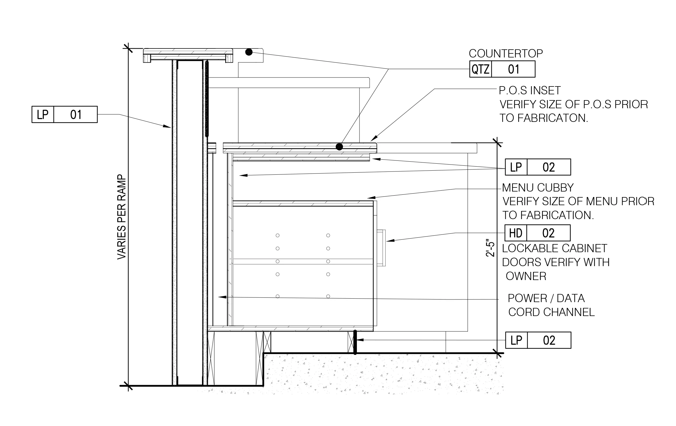
Ceres in Summerlin is a large scale restaurant known for its jazz brunch on Sundays.  The restaurant was in desperate need of a face lift and therefore got with Moser Architecture Studio and hired independent interior designer for a new contemporary retrofit.  My job on this project dealt with meeting with consultants and owners to discuss planning, creating the layout and spatial planning for the space, working closely with the interior designer, creating custom booths and millwork, going through the conceptual process to the end permit set, and additionally working on various aspects of the permit set from detailing, section cuts, elevations, structural trellis plans, and custom millwork details.  The project was completed in 2016 and is currently available for dining.